Mene sisältöön
Vikailmoitukset
Yhteystiedot
Suomi
English
Etusivu
Hakijalle
Kohteet
Hakeminen
Kesä- ja muu vuokraus
Asukkaalle
Asukasinfo
Järjestyssäännöt
Vuokrasopimusehdot
Asioi verkossa
UKK
UKK
Tiedotteet
Yhteystiedot
Etusivu
Hakijalle
Kohteet
Hakeminen
Kesä- ja muu vuokraus
Asukkaalle
Asukasinfo
Järjestyssäännöt
Vuokrasopimusehdot
Asioi verkossa
UKK
UKK
Tiedotteet
Yhteystiedot
Etusivu
Hakijalle
Kohteet
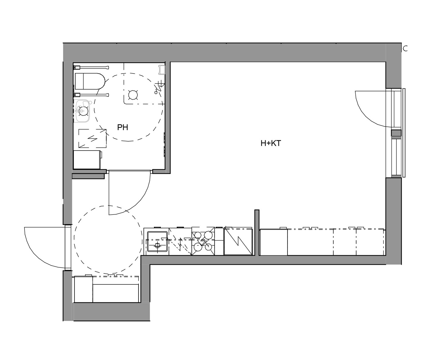
Kajuutta
Yksiö
Yksiö
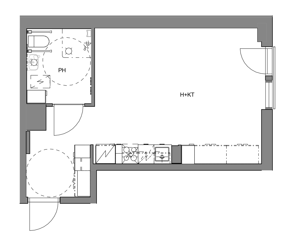
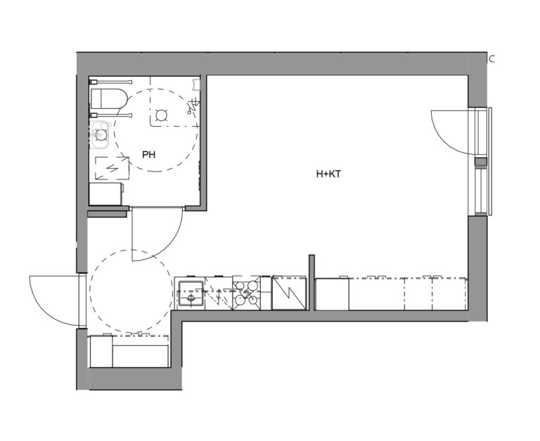
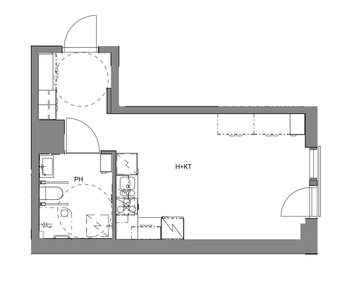
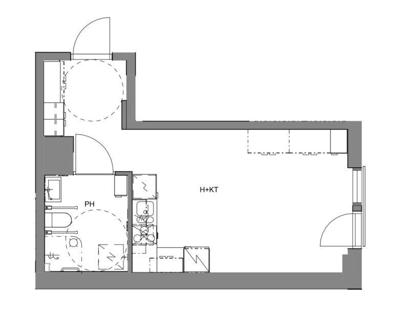
Koko:
28 - 32,5m²
Asuntokoodi:
KAJ11
Kajuutta
Vuokra:
470€/kk
Vakuus:
550€
Kerros:
1
Asuntonumero:
A1, A3, B1
Lisätiedot
1h+kt+wc/su+ranskalainen parveke
Post
Post
Asunnot
Sivut
Filter