Mene sisältöön
Vikailmoitukset
Yhteystiedot
Suomi
English
Etusivu
Hakijalle
Kohteet
Hakeminen
Kesä- ja muu vuokraus
Asukkaalle
Asukasinfo
Järjestyssäännöt
Vuokrasopimusehdot
Asioi verkossa
UKK
UKK
Tiedotteet
Yhteystiedot
Etusivu
Hakijalle
Kohteet
Hakeminen
Kesä- ja muu vuokraus
Asukkaalle
Asukasinfo
Järjestyssäännöt
Vuokrasopimusehdot
Asioi verkossa
UKK
UKK
Tiedotteet
Yhteystiedot
Etusivu
Hakijalle
Kohteet
Kajuutta
Yksiö
Yksiö
Koko:
23 - 24m²
Asuntokoodi:
KAJ12
Kajuutta
Vuokra:
500€/kk
Vakuus:
550€
Kerros:
2, 3, 4, 5
Asuntonumero:
A9, A11, A20, A22, A31, A33, A42, A44, A10, A21, A32, A43, A14, A25, A36, A47, B4, B13, B22, B31
Lisätiedot
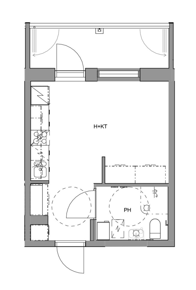
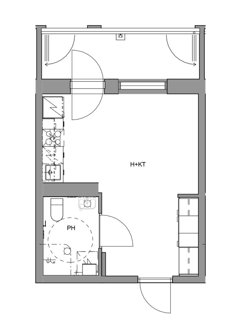
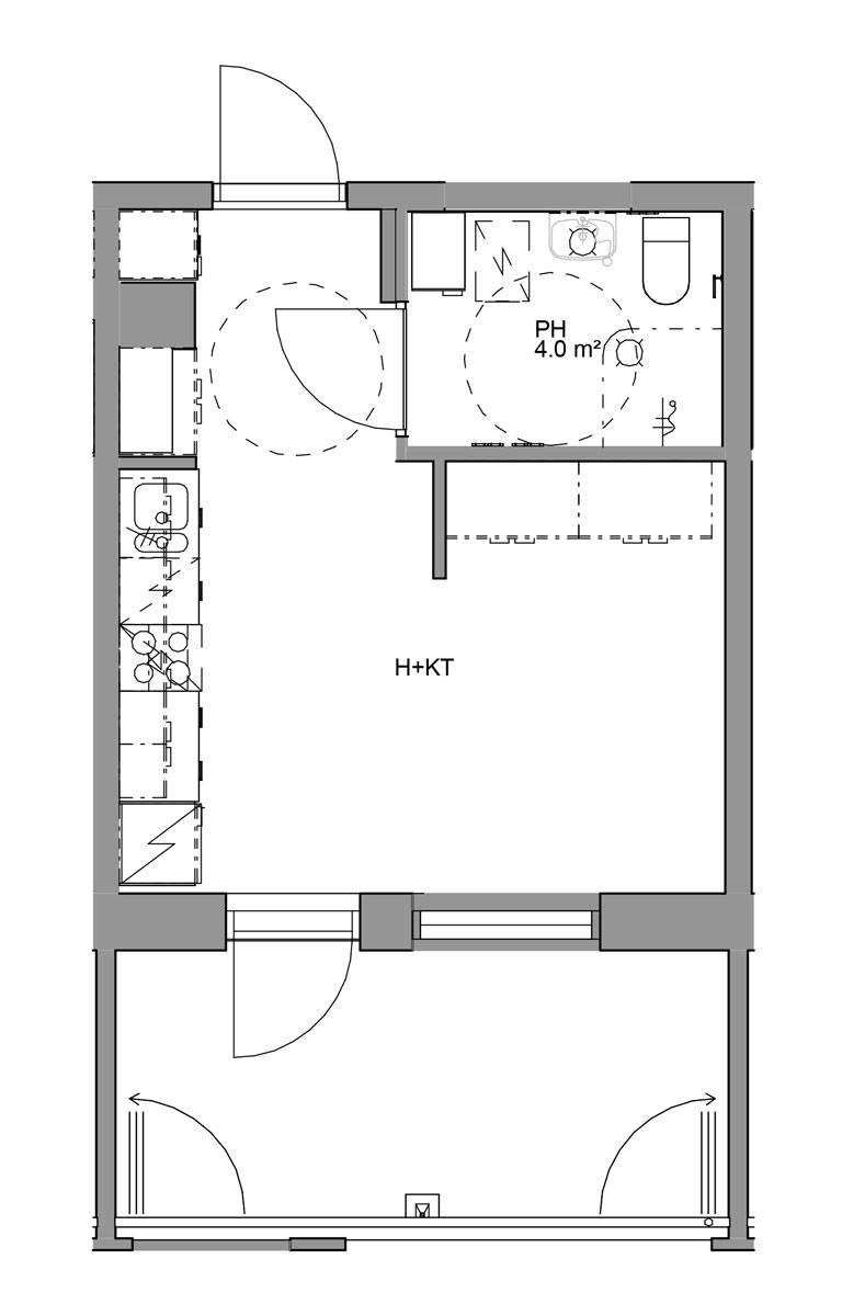
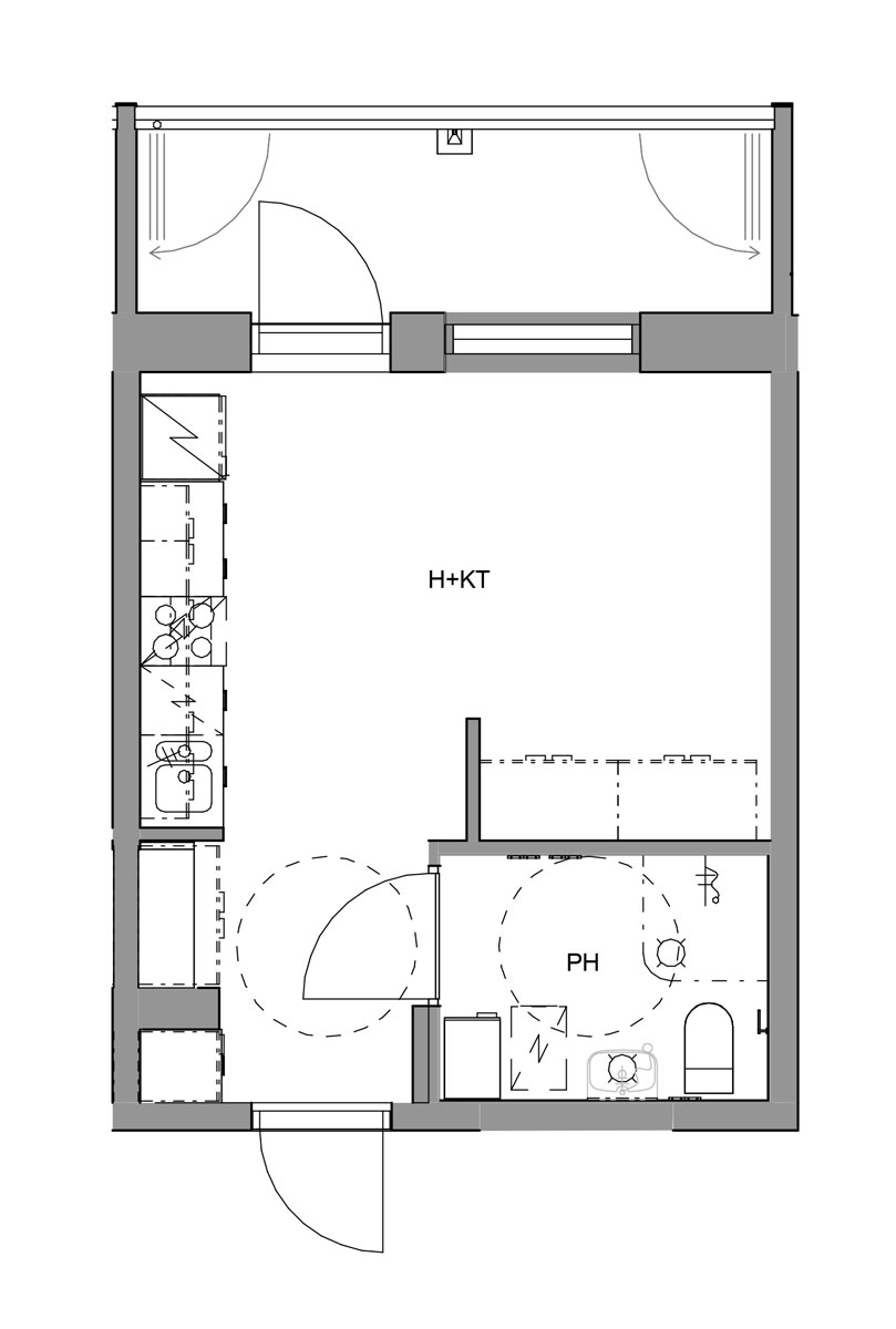
1h+kt/wc/su+lasitettu parveke
Post
Post
Asunnot
Sivut
Filter