Mene sisältöön
Vikailmoitukset
Yhteystiedot
Suomi
English
Etusivu
Hakijalle
Kohteet
Hakeminen
Kesä- ja muu vuokraus
Asukkaalle
Asukasinfo
Järjestyssäännöt
Vuokrasopimusehdot
Asioi verkossa
UKK
UKK
Tiedotteet
Yhteystiedot
Etusivu
Hakijalle
Kohteet
Hakeminen
Kesä- ja muu vuokraus
Asukkaalle
Asukasinfo
Järjestyssäännöt
Vuokrasopimusehdot
Asioi verkossa
UKK
UKK
Tiedotteet
Yhteystiedot
Etusivu
Hakijalle
Kohteet
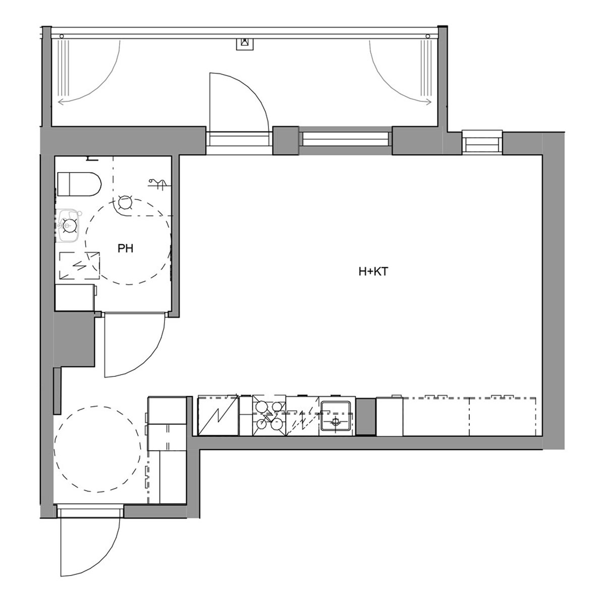
Kajuutta
Yksiö
Yksiö
Koko:
33m²
Asuntokoodi:
KAJ14
Kajuutta
Vuokra:
570€/kk
Vakuus:
550€
Kerros:
2, 3, 4, 5
Asuntonumero:
A5, A16, A27, A38
Lisätiedot
1h+kt/su/wc+lasitettu parveke
Post
Post
Asunnot
Sivut
Filter