Mene sisältöön
Vikailmoitukset
Yhteystiedot
Suomi
English
Etusivu
Hakijalle
Kohteet
Hakeminen
Kesä- ja muu vuokraus
Asukkaalle
Asukasinfo
Järjestyssäännöt
Vuokrasopimusehdot
Asioi verkossa
UKK
UKK
Tiedotteet
Yhteystiedot
Etusivu
Hakijalle
Kohteet
Hakeminen
Kesä- ja muu vuokraus
Asukkaalle
Asukasinfo
Järjestyssäännöt
Vuokrasopimusehdot
Asioi verkossa
UKK
UKK
Tiedotteet
Yhteystiedot
Etusivu
Hakijalle
Kohteet
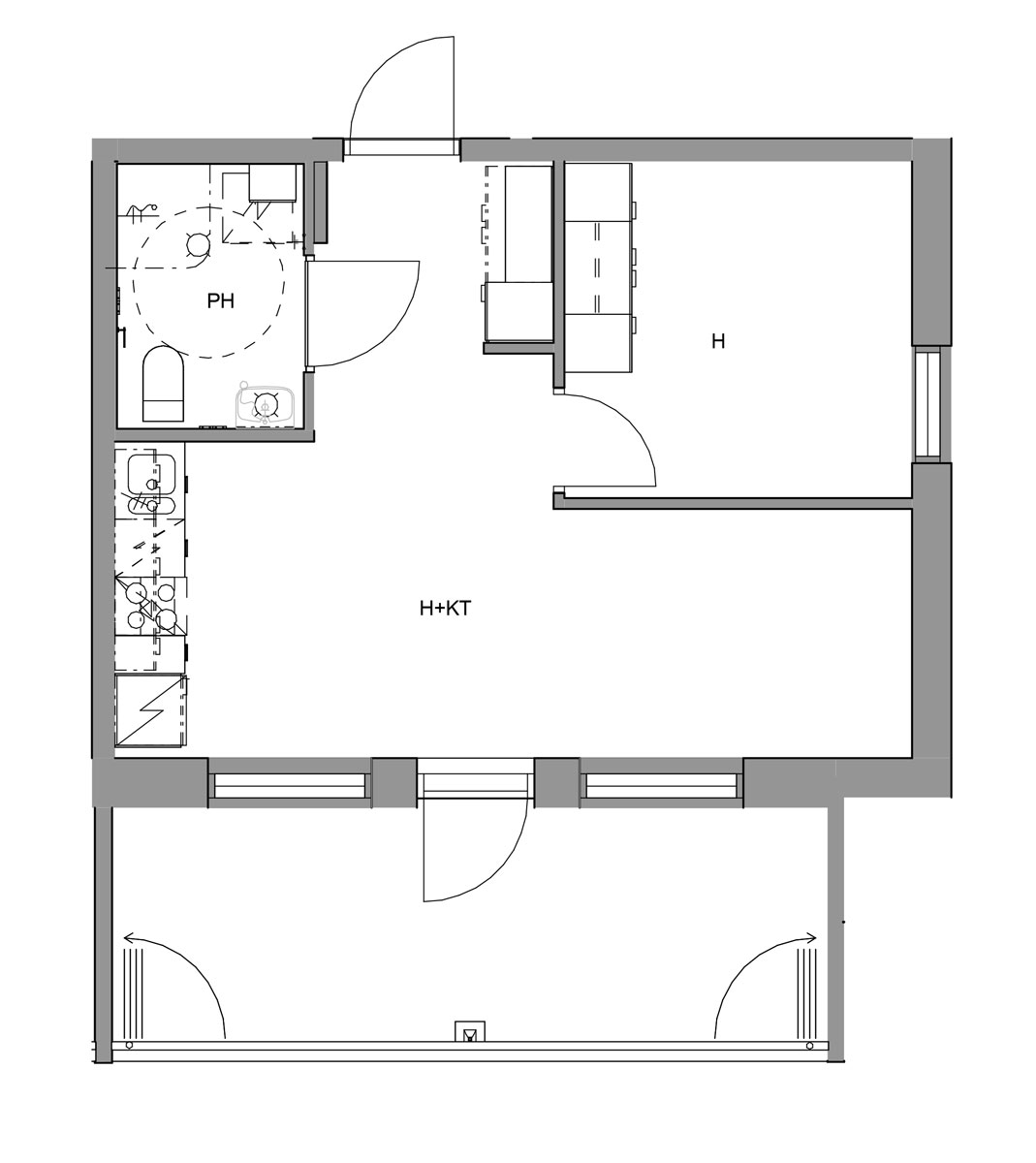
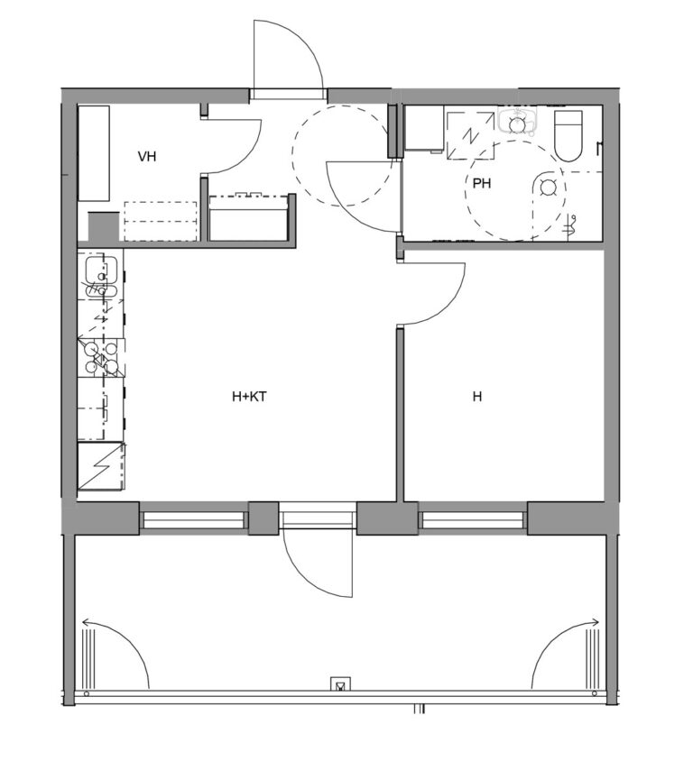
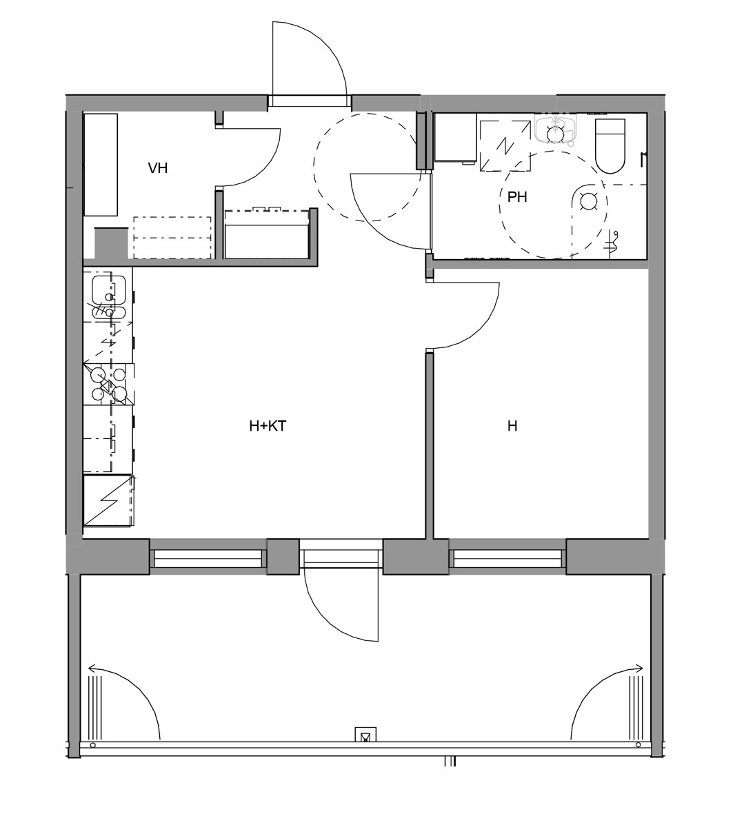
Kajuutta
Kaksio
Kaksio
Koko:
32-35,5m²
Asuntokoodi:
KAJ20
Kajuutta
Vuokra:
600€/kk
Vakuus:
550€
Kerros:
2, 3, 4, 5
Asuntonumero:
B6, B15, B24, B9, B18, B27, B34, B10, B19, B28, B35
Lisätiedot
2h+kt/wc/su+ lasitettu parveke
Post
Post
Asunnot
Sivut
Filter